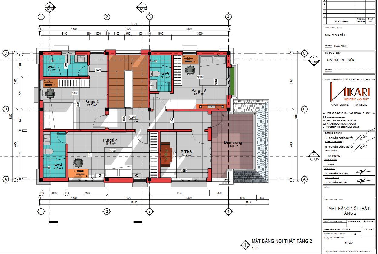
BIỆT THỰ MÁI NHẬT 2 TẦNG
– Địa điểm : Bắc Ninh
– Đơn vị thiết kế: Kiến trúc Hikari
– Chủ đầu tư: Em Huyền
– Đại diện : Kts. Công Quyền, Ks. Tân Việt và các Cộng sự.
Thông tin cơ bản : Một trong những công ty thiết kế hàng đầu trên địa bàn Từ Sơn, Bắc Ninh. Chúng tôi, công ty kiến trúc Hikari, đại diện kts. Công Quyền và các Cộng sự đã tiếp tục đưa ra mẫu thiết kế Biệt thự mái nhật 2 tầng, có sân vườn ngoài. Cùng với phong cách thiết kế không gian mở, chúng tôi xin giới thiệu tới các Bạn mẫu thiết kế mới để cùng tham khảo.
Xin trân trọng mời các Bạn tham khảo thiết kế














